logo-raywhite-offcanvas

Tanah for Rent

Tanah Komersial Disewakan di Tambak Osowilangun Surabaya Dekat Pelabuhan

Surabaya, Jawa Timur


OFFERS OVER

Kristofer Widjaja
Kristofer Widjaja
Call Kristofer
Gambar LM

Tanah for Rent

Tanah Komersial Disewakan di Tambak Osowilangun Surabaya Dekat Pelabuhan

Surabaya, Jawa Timur


OFFERS OVER

Tanah for Rent in Surabaya, Jawa Timur

Disewakan Tanah Komersial
Tambak Osowilangun, Surabaya

Lahan komersial luas di kawasan Tambak Osowilangun yang dikenal sebagai area industri dan logistik strategis di Surabaya Barat.
Lokasi sangat dekat dengan Pelabuhan Teluk Lamong, akses mudah ke jalur distribusi utama, cocok untuk kebutuhan industri, logistik, pergudangan, container yard, maupun usaha skala besar lainnya.
Area ini banyak digunakan oleh perusahaan logistik dan industri berat karena kemudahan akses truk besar serta konektivitas ke pelabuhan dan kawasan industri sekitar.

Tersedia beberapa pilihan lahan dengan kondisi tanah berbeda yang dapat disesuaikan dengan kebutuhan usaha.
Minimum sewa tersedia mulai dari luasan tertentu, dan skema sewa fleksibel untuk jangka menengah maupun panjang.

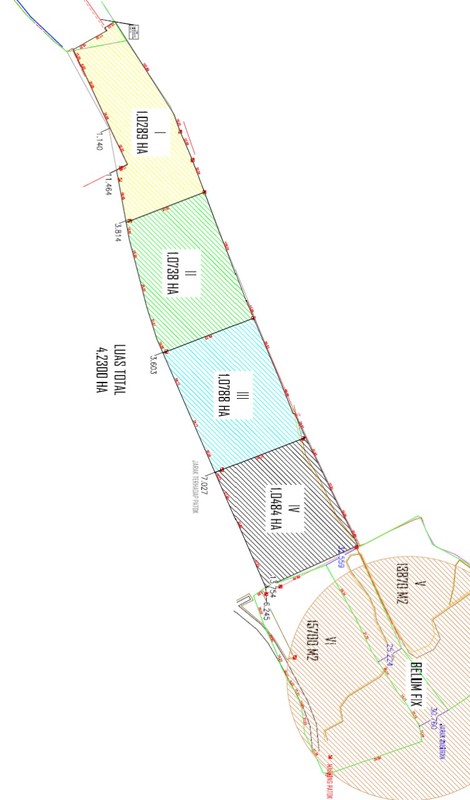
Spesifikasi Umum:
Lokasi I dan II
Kondisi tanah paving
Luas total sekitar 1.6 hektar

Lokasi III
Kondisi tanah basecourse
Luas sekitar 0.8 hektar

Lokasi IV, V, dan VI
Kondisi tanah limestone
Luas total sekitar 4 hektar

Info lebih lanjut hubungi:
Kristofer Widjaja
Ray White Pakuwon Indah
081615000788

English Description:
This commercial land is located in Tambak Osowilangun, Surabaya, a prime industrial and logistics area near Teluk Lamong Port.
The location offers excellent access for heavy vehicles and logistics operations, making it suitable for industrial use, warehouses, container yards, or large scale commercial activities.
Multiple land options are available with different surface conditions, providing flexibility to match various business requirements.


Specification

Live ID : L39037041
Listing ID : 514534
Building Size : 0 m2
Land Size : 64000 m2
Certificate : Hak Lainnya
Bedroom : 0
Bathroom : 0
Carport : 0

Property Article’s